QUEEN Gudrun II

Quartiererneuerung „Queen Gudrun“ – Energetische und ökologische Sanierung des Blocksanierungsgebiets Gudrunstraße II

Das Projekt „Queen Gudrun“ widmet sich der umfassenden Quartiererneuerung unter besonderer Berücksichtigung von Energieeffizienz, Nachhaltigkeit und Ressourcenschonung im Blocksanierungsgebiet „Gudrunstraße II“ in Wien-Innerfavoriten. Es handelt sich um ein historisch gewachsenes Stadtviertel mit einem typischen Wiener Baustilmix aus Gründerzeit- und Nachkriegsgebäuden. Mit 118 Gebäuden, deren Bauzustand weitgehend sanierungsbedürftig ist, repräsentiert das Gebiet zahlreiche ähnliche Wohnquartiere in Wien.

Der aktuelle thermische Energieverbrauch des Gebiets beträgt rund 35 GWh pro Jahr, was zu jährlichen CO₂-Emissionen von etwa 12.000 Tonnen führt. Die Wärmeversorgung erfolgt überwiegend dezentral über Erdgasheizungen. Schätzungen der Projektpartner zufolge besteht ein Energieeinsparpotenzial von über 80 %, das durch umfassende Sanierungen realisiert werden könnte.

Zielsetzung und Ansatz

Das Projekt verfolgt einen ganzheitlichen und umsetzungsorientierten Ansatz zur ressourcenschonenden Sanierung eines gesamten Stadtquartiers – nicht nur einzelner Gebäude. Es adressiert die zentralen Aktionsfelder:

- Energieversorgung & nutzung
- Bestand & Neubau
- Stadtökologie & Klimawandelanpassung
- Kommunikation & Vernetzung

Dabei steht das Spannungsfeld zwischen effektiver Sanierung und sozial verträglichen Mieten im Fokus.

Leiter des Projekts ist die Schöberl & Pöll GmbH, gemeinsam mit den Partnern Trimmel Wall Architekten ZT GmbH, eFriends Energy GmbH, Strebelwerke GmbH und GRÜNSTATTGRAU Forschungs- und Innovations- GmbH.

Gefördert wird „Queen Gudrun“ vom Klima- und Energiefonds im Rahmen der Initiative Smart Cities Demo – Living Urban Innovation 2019. Auch WieNeu+ der Stadt Wien ist integriert.

Demonstrationsgebäude und technologische Innovationen

Ein zentrales Element des Projekts ist die Leuchtturm-Demonstrationssanierung eines Gründerzeitgebäudes, das beispielhaft für ressourcenschonende Nachverdichtung, Energieeffizienz und Stadtbegrünung steht.

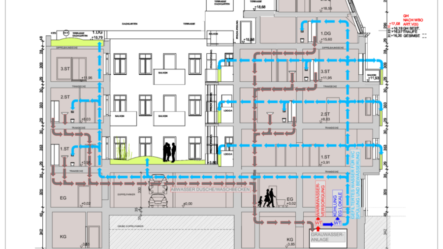
Zum Einsatz kommt hier ein weltweit erster Demonstrator zur gleichzeitigen stofflichen und thermischen Verwertung von Grauwasser.

Grauwasser – also leicht verschmutztes Abwasser aus Duschen, Badewannen oder Handwaschbecken – wird in einer speziellen Anlage gesammelt, biologisch gereinigt und anschließend mittels Membranfiltration weiter aufbereitet. Die von der GEBE-Strebel GmbH entwickelte Technologie erlaubt:

Thermische Nutzung: Das gereinigte Grauwasser dient über ein Wärmepumpensystem zur Warmwasserbereitung und Heizungsunterstützung, ergänzend zur Fernwärme.
Kühlung:Das abgekühlte Filtrat wird zur Kühlung von Erdgeschosszonen eingesetzt.
Stoffliche Nutzung: Schließlich wird das Wasser zur Bewässerung von Fassaden- und Dachbegrünungen verwendet – ein geschlossener, kreislauffähiger Wasserkreislauf entsteht.

Die Fassadenbegrünung wird von Sempergreen umgesetzt und im Anschluss wissenschaftlich monitored, um Auswirkungen und Effizienz zu dokumentieren.

Ein Pilotversuch zur Errichtung einer Energiegemeinschaft ermöglicht den Austausch von selbst erzeugter Energie zwischen den Bewohner:innen. Dabei werden Energieverbrauch und -erzeugung in Echtzeit erfasst, um eine **intelligente Abstimmung von Energiebedarf und -angebot zu gewährleisten.

Forschung, Beteiligung und Übertragbarkeit

Ein Vorversuch zur Grauwassernutzung wurde bereits im Rahmen des Projekts GREENWATERRECYCLING an der Universität für Bodenkultur Wien durchgeführt. Die Ergebnisse zeigten, dass aufbereitetes Grauwasser für die Bewässerung verschiedener Pflanzenarten – von Rasen über Stadtbäume bis Kletterpflanzen – geeignet ist und damit einen wichtigen Beitrag zur Kreislaufwirtschaft und Ressourcenschonung leisten kann.

Das Projekt Queen Gudrun integriert zudem partizipative Planungsprozesse mit Bewohner:innen und relevanten Akteuren. Ziel ist die gemeinsame Entwicklung eines Masterplans für nachhaltige Maßnahmen im gesamten Blocksanierungsgebiet.

Zur Einbindung der Bevölkerung kommt auch der MUGLI, der mobile Ausstellungsraum von GRÜNSTATTGRAU, zum Einsatz. Er dient als Ort für Dialog, Ideenfindung und Technologieakzeptanztests. Die Ergebnisse dieser Beteiligung fließen in die weitere Planung und mögliche Übertragungen auf andere Wiener und österreichische Stadtteile ein.

Bedeutung und Ausblick

„Queen Gudrun“ steht beispielhaft für die Zukunft urbaner Bestandsentwicklung:

- Energieeffizient, durch intelligente Kombination von Sanierung, Energiegewinnung und -speicherung
- Ökologisch, durch innovative Wasser- und Begrünungskonzepte
- Sozial, durch leistbare und gemeinschaftlich entwickelte Lösungen

Mit diesem Projekt wird gezeigt, wie Stadtökologie, Energiewende und Klimaanpassung im dichten urbanen Bestand realisiert werden können – als Modell für nachhaltige, lebenswerte und resiliente Städte der Zukunft.

(c) TrimmelWall sowie Strebelwerk GmbH

Beginn

Mar 2020

Ende

Feb 2023

Förderprogramm

Smart Cities Demo - Living Urban Innovation 2019

Projektpartner

 

Weitere Infos

Links

To Top